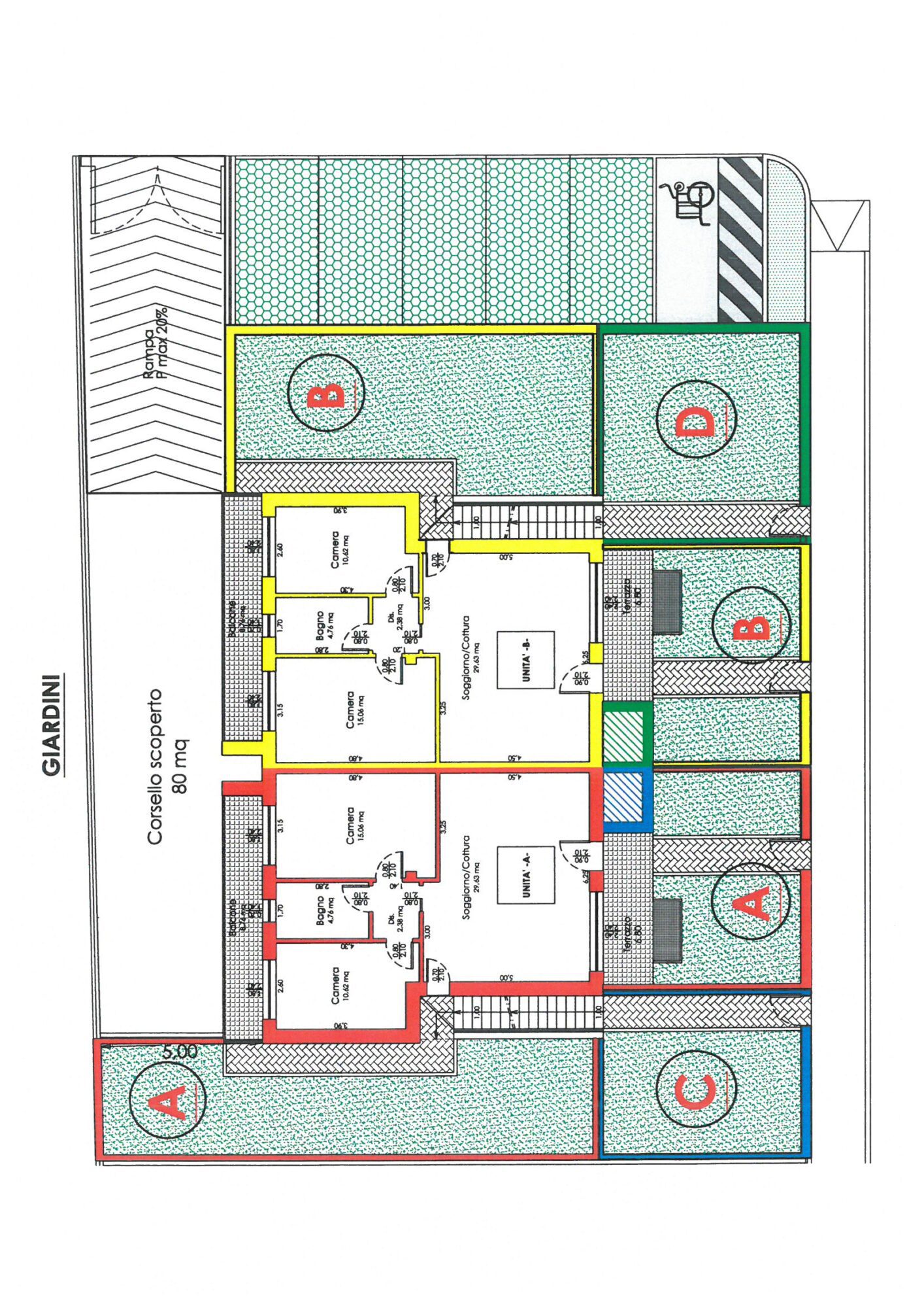
San Mauro Pascoli – Appartamento D

Quadrifamiliare

In San Mauro Pascoli, nuova lottazzione in via Del Sole che presvede la realizzazione di nr. 2 blocchi di tre villette a schiera ciascuna ed una palazzina quadrifamiliare.
La nostra tipologia di Quadrifamiliari, offre soluzioni con ingresso indipendente e giardino privato, appartamento su unico livello e garage al piano interrato.
Ampi spazi, luminosi e ottime rifiniture.
Classe Energetica A

Appartamento D: scheda commerciale

Piano terra: 74 mq

Garage: 34.50 mq

Logge/Balconi/Terrazzi/Scala/Ascensore: 33 mq

Giardino: 40.40 mq

Scarica il file in allegato!

Richiedi Informazioni per questo immobile